|
||
全部產品分類
|
||



對比
加入企業(yè)產品庫
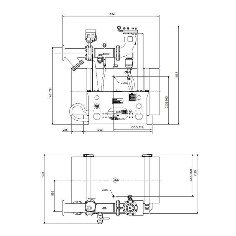
| 【標準系列】100/680/1450L撬裝彈出式泡沫劑甲板綜合消防系統(tǒng) | |||
| 滅火介質: | 水成膜泡沫 | 氣態(tài)介質容量: | 100/680/1450L |
| 測試壓力: | 24bar | 介質加注速度: | 0.7L/泵 |
| 設計適用溫度: | -20°C - +60°C | 占地面積: | 1125x2450 mm |
| 凈重: | 800kg | ||
| -供應商聯(lián)系方式- | |||||
|
|
公司名稱: | 安融能源技術(上海)有限公司 |
|
聯(lián)系人姓名: | 于寶勤 |
| 公司地址: | 上海市浦東新區(qū)沈家弄路310-311室 | 聯(lián)系人電話: | 15921394939 | ||
| 聯(lián)系人郵箱: | baoqin.yu@aeron-marine.com | ||||